Umsetzung
Wohngebietsentwicklung auf 12.000 m²
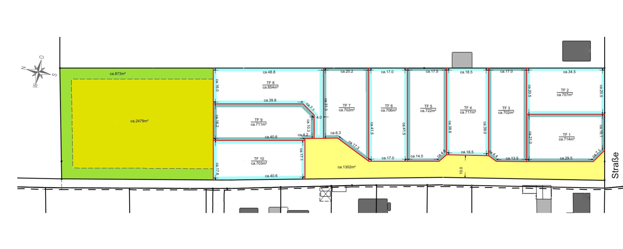
Beschreibung
Aus einer bislang ungenutzten Fläche entsteht derzeit ein modernes Wohnquartier mit besonderem Charakter. Auf rund 12.000 m² haben wir Raum für 10 Baugrundstücke geschaffen, die Platz für Einfamilienhäuser, Stadtvillen und Bungalows bieten – ein vielfältiger Mix, der unterschiedlichen Wohnwünschen gerecht wird.
Die Entwicklung begann 2021 mit der Aufstellung des Bebauungsplans, der 2023 erfolgreich abgeschlossen werden konnte. 2024 starteten wir mit den Erschließungsarbeiten, also dem Verlegen der Medien und dem Bau der Verkehrsflächen, und gleichzeitig begann die Vermarktung der Grundstücke. Bereits ein Jahr später, 2025, waren sämtliche Flächen verkauft – ein Zeichen für die hohe Attraktivität des Projekts.
Derzeit prägen die Baustellen der künftigen Eigenheime das Bild: Die Bauarbeiten schreiten sichtbar voran, und schon Ende 2026 bis Anfang 2027 wird das Wohngebiet voraussichtlich vollständig fertiggestellt sein.
Das Projekt zeigt eindrucksvoll, wie ungenutzte Flächen durch strukturierte Planung und verlässliche Umsetzung in lebendige Wohngebiete verwandelt werden können. Für die Gemeinde bedeutet es die Schaffung neuen, hochwertigen Wohnraums und die nachhaltige Aufwertung des Standortes. Für die Eigentümer eröffnet es die Chance, ihren individuellen Traum vom Wohnen in einem modernen, vielfältigen Umfeld zu realisieren.
Informationen
Ort: Vehlefanz
Projektbeginn: 2021
Fläche: ca. 12.000 m²
Grundstücke: 10
Bebauungsplan: 2021–2023
Erschließung: 2024
Verkauf: 2024–2025 (alle Grundstücke verkauft)
Bauphase: seit 2025, aktuell im Bau
Voraussichtliche Fertigstellung: Ende 2026 bis Anfang 2027
Weitere Bilder
Ihr Kontakt









